Apartamente 3 camere de vanzare Alba Iulia - Decebal - Muncii
Cauti un apartament cu 3 camere, cochet, cu acces facil la metroul Nicolae Grigorescu (300 m), si Parcul IOR ( 750m )? A, da, si cu Comision 0% Cumparator? :) Apartamentele cu 3 camere din imobilul...
Va propunem un apartament deosebit situat pe strada Nerva Traian, la etajul 8 din 10. Apartamentul a fost modificat conform utorizatiei de constructie si beneficiaza de o compartimentare functionala...
Va prezentam un apartament boem, situat intr-un bloc construit in anul 1992, pe Bulevardul Burebista, in imediata apropiere a Pietei Alba Iulia. Apartamentul este renovat, mobilat si utilat complet, aflat...
Va oferim spre vanzare un apartament de 3 camere in rondul Piata Alba iulia, stradal, la etajul 5/8, decomandat, liber, cu bucatarie open, 2 grupuri sanitare cu vederea pe fata la bulevard si pe spate....
Vectorial Broker va prezinta un apartament de 3 camere in zona Alba Iulia, reper Piata Alba Iulia, confort 1 decomandat, avand suprafata de 85 mp, cu 2 bai si 3 balcoane. Locuinta este situata la etajul...


etaj 5/8, decomandat, renovat integral, mobilat si utilat modern, vedere mixta, 80 mp, bloc monolit,constructie 1995, liber,2 grupuri sanitare
OPORTUNITATE EXCELENTA PE PIATA IMOBILIARA!!! Va propunem spre vanzare un apartament de 3 camere, situat intr-o zona deosebit de atractiva langa UNIVERSITATEA HYPERION, la 15 minute de statia de Metrou...
Vectorial Broker va prezinta un apartament de 3 camere in Unirii, reper Tribunal Bucuresti, confort 1 decomandat, avand suprafata de 87 mp, cu 2 bai si 2 balcoane. Locuinta este situata la etajul 2, intr-un...
Va oferim spre vanzare un apartament 3 camere, etaj 3/8 decomandat, in zona Piata Alba Iulia, bloc 1987, bloc anvelopat in 2023, la 5 minute magistralele de metrou M1 si M2, statia de metrou Dristor,...
Va oferim spre vanzare un apartament cu 3 camere (transformat din 2 camere) pe Bulevardul Unirii, la etajul 4/8 decomandat, renovat, cu finisaje de lux gata de locuit, mobilat si utilat Mobexpert-LUX....


Va oferim spre vanzare un apartament de 3 camere, in zona Unirii-Goga, la etajul 3/8 decomandat, cu bucataria open, mobilata si utilata, renovat modern, cu 2 grupuri sanitare, si un balcon. Suprafata...
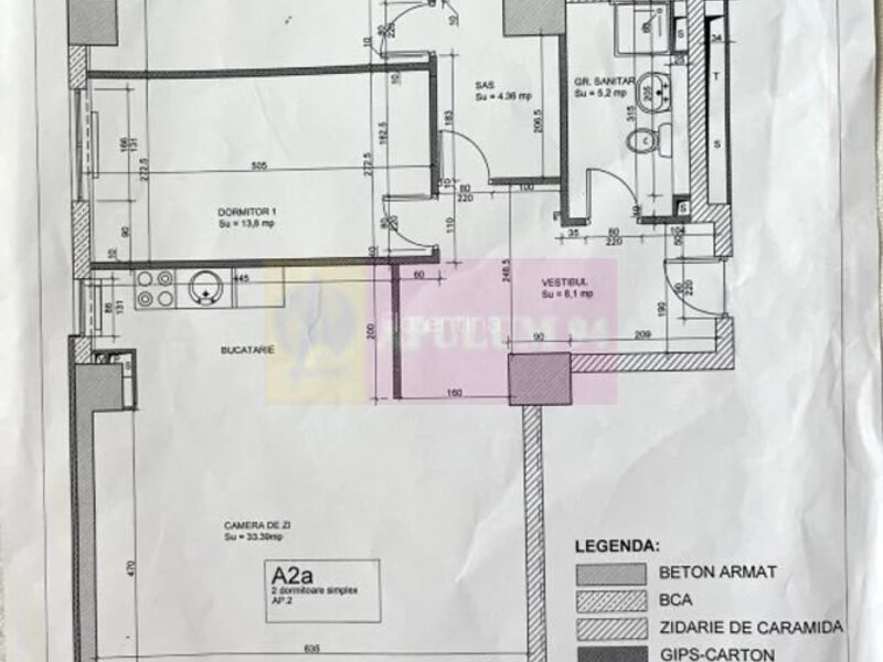
Apulum94 ofera spre vanzare apartament cu 3 camere in zona Mall Vitan Locatie excelenta, la intersectia Str. Vlad Judetul cu Calea Dudesti, la doar 6 minute de mers pe jos de Piata Alba Iulia si Mall...
Va propunem spre vanzare un apartament de 3 camere, situat intr-o zona linistita si deosebit de atractiva, pe bulevardul Unirii - Rond Alba Iulia. Apartamentul este renovat, decomandat etaj 5/10, termopane...
Piata Muncii, bloc stradal, vedere mixta, et. 2/8, 2 balcoane inchise, amenajat, modificari interioare-cuprinse in schita cadastrala, 80 mp, intabulare, se accepta si credit bancar,
Va oferim spre vanzare un apartament cu 3 camere in zona Tineretului, la etajul 8/8 semidecomandat, cu blocul din anul 1986, frumos, spatios, luminos, utilat si mobilat, toate actele pregatite de vanzare....


3 minute metrou Piata Muncii apartament in vila renovata si consolidata 2015, ideal cabinet, birouri sau locuinta, se pot prelua chiriasii,
PYF018B11242 Vanzare 3 camere Pret: 199.999 Euro Zona: Decebal, Bucuresti Strada: Lucaci ID oferta: PYF018B11242 Acasa incepe cu un sentiment.......Poate fi o lumina calda intr-o dupa-amiaza linistita,...
Apartament 3 camere Decebal, Burebista, Metrou. Mauwis Imobiliare va ofera spre cumparare un apartament de 3 camere intr-un bloc construit in anul 1988. Imobilul se afla in situat in zona Bd Burebista...
PYF001BB8402 Imagineaza-ti locuinta perfecta, care sa reflecte personalitatea ta si sa satisfaca toate nevoile tale. Echipa noastra dedicata te va ajuta in cautarea locuintei ideale. Portofoliul nostru...
PYF001B9676 Imagineaza-ti locuinta perfecta, care sa reflecte personalitatea ta si sa satisfaca toate nevoile tale. Echipa noastra dedicata te va ajuta in cautarea locuintei ideale. Portofoliul nostru...
PYF001B9713 Imagineaza-ti locuinta perfecta, care sa reflecte personalitatea ta si sa satisfaca toate nevoile tale. Echipa noastra dedicata te va ajuta in cautarea locuintei ideale. Portofoliul nostru...
PYF001B10222 Imagineaza-ti locuinta perfecta, care sa reflecte personalitatea ta si sa satisfaca toate nevoile tale. Echipa noastra dedicata te va ajuta in cautarea locuintei ideale. Portofoliul nostru...
PYF001B10508 Imagineaza-ti locuinta perfecta, care sa reflecte personalitatea ta si sa satisfaca toate nevoile tale. Echipa noastra dedicata te va ajuta in cautarea locuintei ideale. Portofoliul nostru...
PYF001B10705 Imagineaza-ti locuinta perfecta, care sa reflecte personalitatea ta si sa satisfaca toate nevoile tale. Echipa noastra dedicata te va ajuta in cautarea locuintei ideale. Portofoliul...
PYF018B10942 Vanzare 3 camere Zona: Unirii, Bucuresti Pret: 250.000 Euro ID oferta: PYF018B10942 Acasa incepe cu un sentiment.......Poate fi o lumina calda intr-o dupa-amiaza linistita, un balcon...
Apartament 3 camere – Zona Muncii / Decebal – liniste, lumina si locatie ideala. Va propunem spre vanzare un apartament de 3 camere situat intr-una dintre cele mai apreciate zone din Bucuresti – Muncii...

Fix & rent sau fix & flip; Care e treaba cu „metoda leverage”; Nu investiți în ce nu înțelegeți și nu...

Câte zile libere legale sunt în 2025 * Calendarul minivacanțelor de sărbători din 2025 * Câte zile libere...

Patru condiții esențiale pentru a mai beneficia de TVA 9% la unele apartamente; Cu cât se scumpesc apartamentele...