Toporasi- Branistari, sector 5, garsoniera- etaj 1 din P+4, bloc civilizat
22.000 €
Toporasi- Branistari, sector 5, garsoniera- etaj 1 din P+4, bloc civilizat
22.000 €
Caracteristici
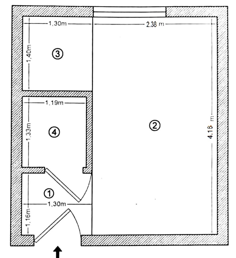
Suprafata 16 mp
An 1970
Semidecomandat
Etaj 1 din 4
Optiuni interior: Apometre Contor gaze Usa metalica
Optiuni exterior: Interfon Loc parcare
Optiuni interior: Apometre Contor gaze Usa metalica
Optiuni exterior: Interfon Loc parcare
Descriere
Va propun spre vanzare o garsoniera care se afla la etajul 1 al unui bloc cu regim de inaltime P+4E. Are usa metalica la intrare, instalatie sanitara cu robineti instant pentru apa calda, bucatarie cu instalatie de gaze proprie-contorizata, alimentare cu apa si scurgere. Este libera si pretabila pentru amenajari dupa dorinta cumparatorului. Parcare disponibila la bloc. Garsoniera are toate actele in regula, asigurare PAD si este ideala pentru a deveni caminul unei familii tinere, la inceput de drum sau pentru investitie, este situata foarte aproape mijloacele de transport in comun cu acces facil catre zonele centrale ale Bucurestiului. Nu se percepe comision.
53 vizualizari
Bucuresti, Sector 5, 07 Octombrie '25
Actualizat ieri; 15:24
Actualizat ieri; 15:24
Statii metrou
Eroii Revoluției | 33 min |
Statii STB
139 , 141 , 220 , 323 , N121 | Vâltoarei | 5 min |
139 , 141 , 220 , 323 , N121 | Vâltoarei | 5 min |
CFR | 7 min | |
139 , 141 , 220 , 323 , N121 | Vadul Nou | 9 min |
139 , 141 , 216 , 220 , 323 , N121 | Zețarilor | 11 min |
Evolutia preturilor imobiliare in Rahova-Sebastian
se incarca..