Sector 4, Bucuresti
            249.000 €        
    Sector 4, Bucuresti.
            249.000 €        
    
        Caracteristici
    
       
                        
                 Suprafata utila 110 mp
                
                        
                 Teren 60 mp
                
                        
                 An 2019
                
                        
                 5 camere
                
                        
                 La cheie
                
            
                                                                        
Optiuni interior: 2+ gr. sanitare Aer conditionat Alimentare apa Camera serviciu Canalizare Centrala termica Gaze Izolatie termica Living Mansarda Terasa
Optiuni exterior: Curte amenajata Curte pavata Gradina M 18 min.
            Optiuni interior: 2+ gr. sanitare Aer conditionat Alimentare apa Camera serviciu Canalizare Centrala termica Gaze Izolatie termica Living Mansarda Terasa
Optiuni exterior: Curte amenajata Curte pavata Gradina M 18 min.
        Descriere
    
            
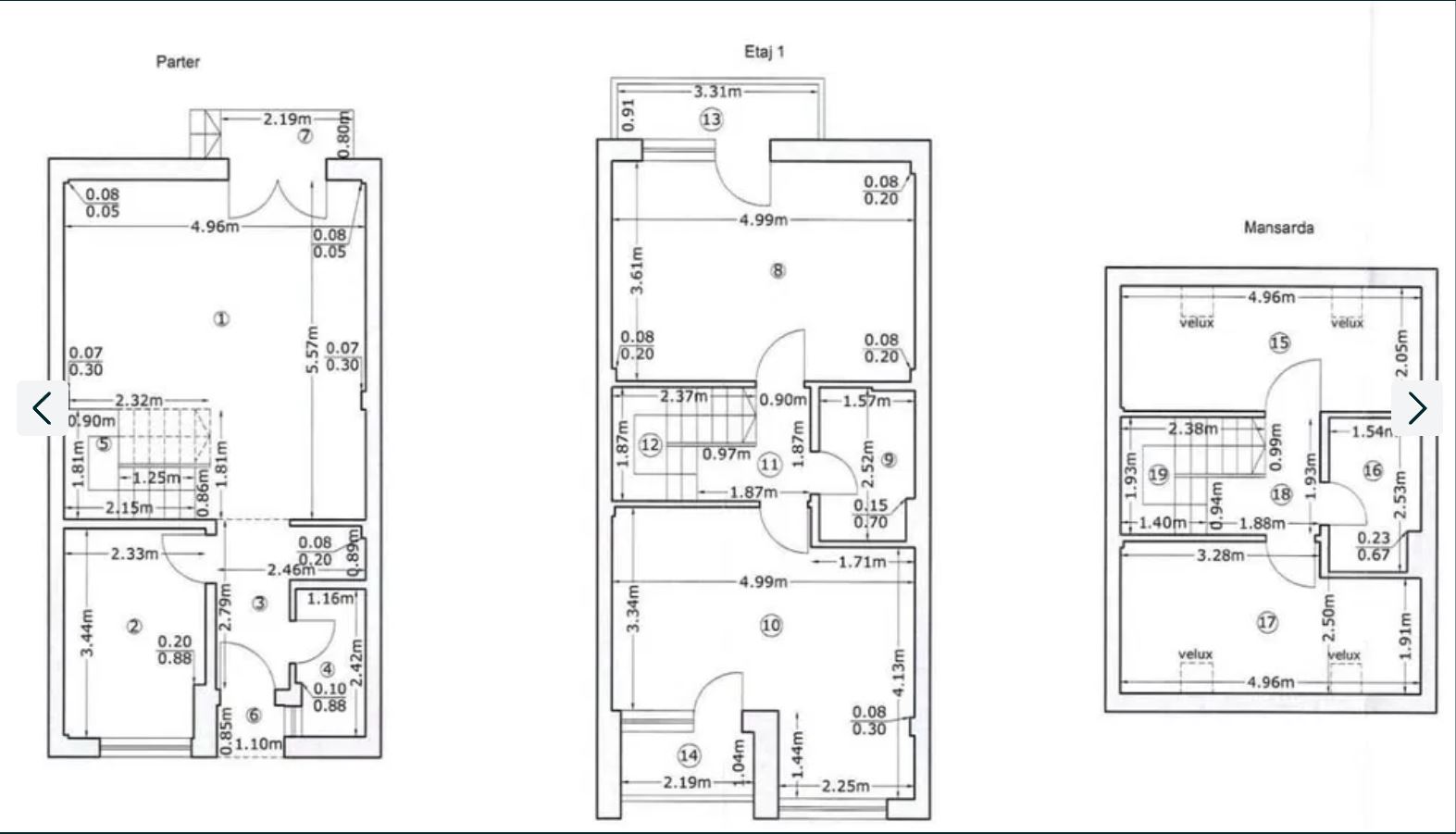
            Iti prezentam o casa cu 4 dormitoare si un living, 3 bai, bucatarie detasata, cu o suprafata utila de 110 mp, suprafata construita 128 mp. Este nemobilat oferindu-ti libertatea de a-l amenaja conform gusturilor tale. Apartamentul are o distributie bine gandita, cu o bucatarie separata. Camera de zi este luminoasa, cu vedere la curtea din spate.
Curte spate 25 mp. Constructie 2019. Centrala pe gaz. 4 aparate aer conditionat.
Casa se va elibera de mobila care exista si pentru a intelege mai bine spatiul va asteptam la vizionare.
    
             
    
    Curte spate 25 mp. Constructie 2019. Centrala pe gaz. 4 aparate aer conditionat.
Casa se va elibera de mobila care exista si pentru a intelege mai bine spatiul va asteptam la vizionare.
    1.606 vizualizari
    
                                 Bucuresti, Sector 4, ieri; 19:57                    
Actualizat 14 Octombrie '25
        
    
    Actualizat 14 Octombrie '25
            Statii metrou
        
        | Dimitrie Leonida | 18 min | |
| Berceni | 31 min | 
            Statii STB
        
        | Drumul Crețeștilor | 8 min | |
| 125 , 141 , 220 , N105 | Dumitru Brumărescu | 8 min | 
| 241 | Drumul Jilavei 99 | 11 min | 
| 241 | Arcadiei | 12 min | 
        Evolutia preturilor imobiliare in Berceni-Giurgiului
    
    
        se incarca..
    
     
     
    
             
     
               
      
    