Ramnicul Valcea- Parc Zavoi
440.000 €
Ramnicul Valcea- Parc Zavoi
440.000 €
Caracteristici
Suprafata utila 300 mp
Teren 200 mp
An 2000
12 camere
La cheie
Optiuni interior: 2+ gr. sanitare Aer conditionat Alarma Alimentare apa Beci/pivnita Camera serviciu Canalizare Centrala termica Dressing Gaze Izolatie termica Living Mansarda Terasa
Optiuni exterior: Curte amenajata Curte pavata Gradina Porti electrice M 10 min.
Optiuni interior: 2+ gr. sanitare Aer conditionat Alarma Alimentare apa Beci/pivnita Camera serviciu Canalizare Centrala termica Dressing Gaze Izolatie termica Living Mansarda Terasa
Optiuni exterior: Curte amenajata Curte pavata Gradina Porti electrice M 10 min.
Descriere
Liderimob Business House SRL va propune spre vanzare vila ultracentrala, in orasul Ramnicu Valcea, P+1+M. Se vinde etajul 1 +Mansarda cu scara interioara ce deserveste etajul 1 si Mansarda. Vila se afla vis-a-vis de Parcul Zavoi, cu vedere la parc, o pozitie unica ce poate fi valorificata ca sediu de firma, notariat, apartamente individuale de locuit sau de inchiriat.
In curte se afla loc de parcare, spatiu de depozitare, spatiu tehnic.
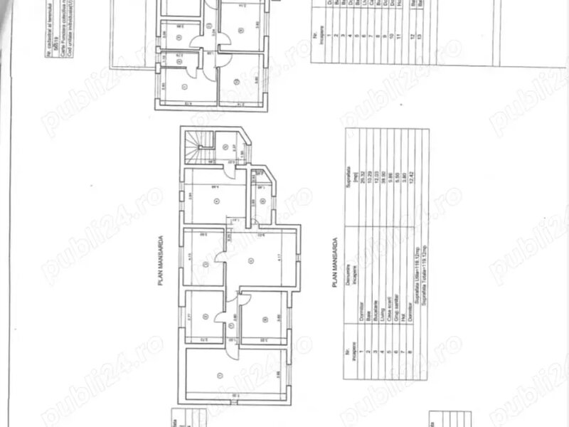
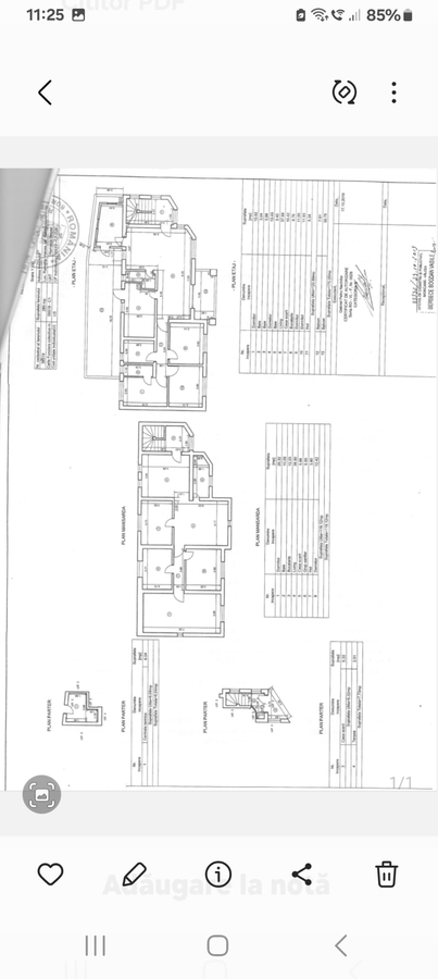
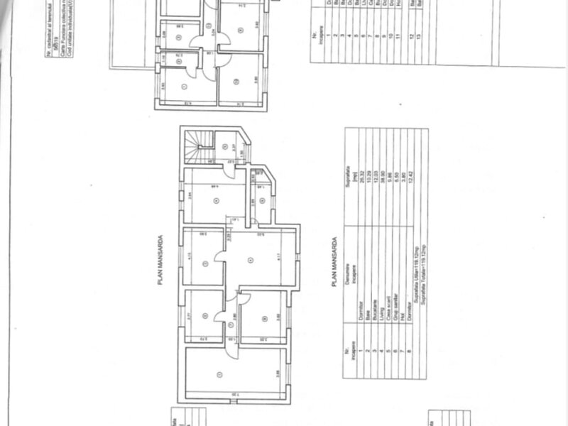
Etajul 1 are o suprafata de 170 mp si este compus din : Living de 38 mp, 4 dormitoare, 3 bai, bucatarie, casa scarii, balcon si o superba terasa in suprafata de 40 mp unde se afla o bucatarie de vara cu gratar, etc.
Mansarda are o suprafata de 120 mp si este comusa din: living in suprafata de 39 mp, 2 dormitoare, 2 bai, bucatarie, hol si casa scarii.
Vila are o structura solida, cu toate utilitatile si are finisaje de LUX (marmura alba in toata casa, inclusiv pe casa scarii, parchet, usi, etc ).
Pretul este de 440.000 euro.
In curte se afla loc de parcare, spatiu de depozitare, spatiu tehnic.
Etajul 1 are o suprafata de 170 mp si este compus din : Living de 38 mp, 4 dormitoare, 3 bai, bucatarie, casa scarii, balcon si o superba terasa in suprafata de 40 mp unde se afla o bucatarie de vara cu gratar, etc.
Mansarda are o suprafata de 120 mp si este comusa din: living in suprafata de 39 mp, 2 dormitoare, 2 bai, bucatarie, hol si casa scarii.
Vila are o structura solida, cu toate utilitatile si are finisaje de LUX (marmura alba in toata casa, inclusiv pe casa scarii, parchet, usi, etc ).
Pretul este de 440.000 euro.
28 vizualizari
Valcea, Ramnicu Valcea, Publicat azi; 12:15
Actualizat azi; 12:27
Actualizat azi; 12:27
Statii metrou
Pasaj pietonal-Intrare Știrbei Vodă | 10 min |
Statii STB
Mall | 11 min | |
Zăvoi | 11 min | |
Splaiul Independenței | 12 min |