Domenii Parcul Copilului, imobil cu destinatie rezidential cat si comercial
445.000 €
Domenii Parcul Copilului, imobil cu destinatie rezidential cat si comercial
445.000 €
Caracteristici
Suprafata utila 200 mp
Teren 243 mp
An 2002
5 camere
Optiuni interior: Alimentare apa Centrala termica Gaze M 8 min.
Optiuni interior: Alimentare apa Centrala termica Gaze M 8 min.
Descriere
Agentia noastra va prezinta spre vanzare un imobil construit in anul 2002 care a avut destinatia comerciala/ productie de la construire si pana in prezent. Acest imobil este situat intre zona Domenii si Calea Grivitei.
Cu putina imaginatie acesta poate fi transformat intr-un spatiu foarte util pentru viata de familie cat si o activitate comerciala.
Acest imobil beneficieaza de un regim de inaltime P+1 .
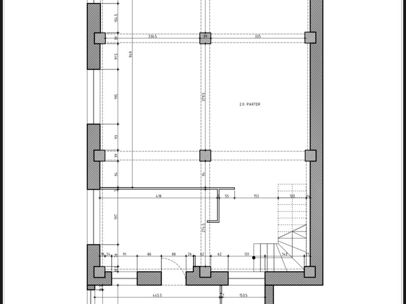
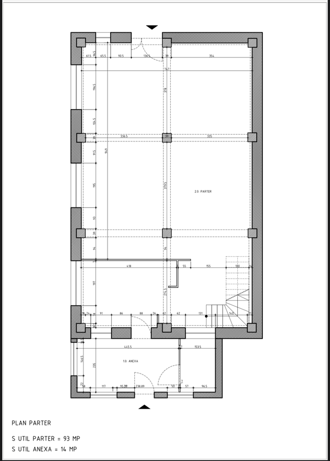
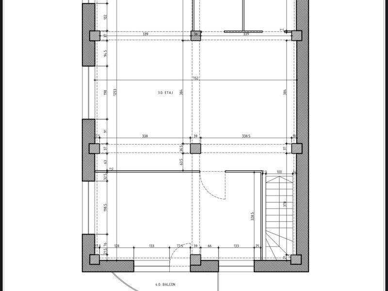
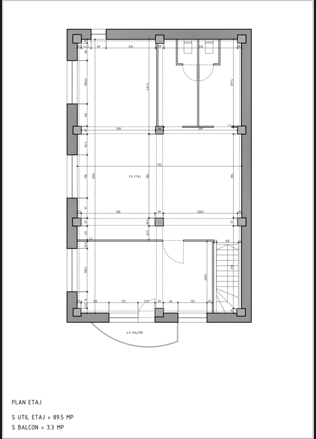
Suprafata interiora este compusa din aproximativ 200mp, situati pe parter si etaj.
Interiorul este open space si poate fi compartimentat dupa nevoile fiecaurui client.
In varianta de locuinta parterul poate avea rol de living + dining+bucatarie+birou/dormitor+baie/bai+hol si la etaj se po face 3dormitoare+2bai +zona pentru dressing dedicata.
In varianta de comercial imoblul se poate compartimenta dupa necesitatile clientului.
Imobilul are o amprenta la sol de aproximativ 100mp si curte libera aproximativ 150mp.
Terenul total are o suprafata de 243mp si beneficieaza de doua fronturi stradale, ambele de aproximativ 12ml.
Oferta prezentata necesita compartimentare si amenajare duoa nevoile fiecarui client.
Cu putina imaginatie acesta poate fi transformat intr-un spatiu foarte util pentru viata de familie cat si o activitate comerciala.
Acest imobil beneficieaza de un regim de inaltime P+1 .
Suprafata interiora este compusa din aproximativ 200mp, situati pe parter si etaj.
Interiorul este open space si poate fi compartimentat dupa nevoile fiecaurui client.
In varianta de locuinta parterul poate avea rol de living + dining+bucatarie+birou/dormitor+baie/bai+hol si la etaj se po face 3dormitoare+2bai +zona pentru dressing dedicata.
In varianta de comercial imoblul se poate compartimenta dupa necesitatile clientului.
Imobilul are o amprenta la sol de aproximativ 100mp si curte libera aproximativ 150mp.
Terenul total are o suprafata de 243mp si beneficieaza de doua fronturi stradale, ambele de aproximativ 12ml.
Oferta prezentata necesita compartimentare si amenajare duoa nevoile fiecarui client.
1.174 vizualizari
Bucuresti, Sector 1, 23 Octombrie '25
Actualizat 15 Octombrie '25
Actualizat 15 Octombrie '25
Statii metrou
| Grivița | 8 min | |
| 1 Mai | 16 min | |
| Basarab (M4) | 32 min |
Statii STB
| Sandu Aldea | 5 min | |
| Aviator Popișteanu | 5 min | |
| Piața Domenii | 8 min | |
| 65 , 86 , 97 105 , 97105 | Feroviarilor | 10 min |
| 65 , 86 , 97 105 | Lainici | 12 min |
Evolutia preturilor imobiliare in 1 Mai-Domenii
se incarca..
