Vanzare apartament 3 camere Casa Poporului-Natiunile Unite
275.000 €
Vanzare apartament 3 camere Casa Poporului-Natiunile Unite
275.000 €
Caracteristici
Suprafata 74 mp
An 1992
Decomandat
Etaj 6 din 8
Optiuni interior: 2 grupuri sanitare Balcon M 13 min.
Optiuni interior: 2 grupuri sanitare Balcon M 13 min.
Descriere
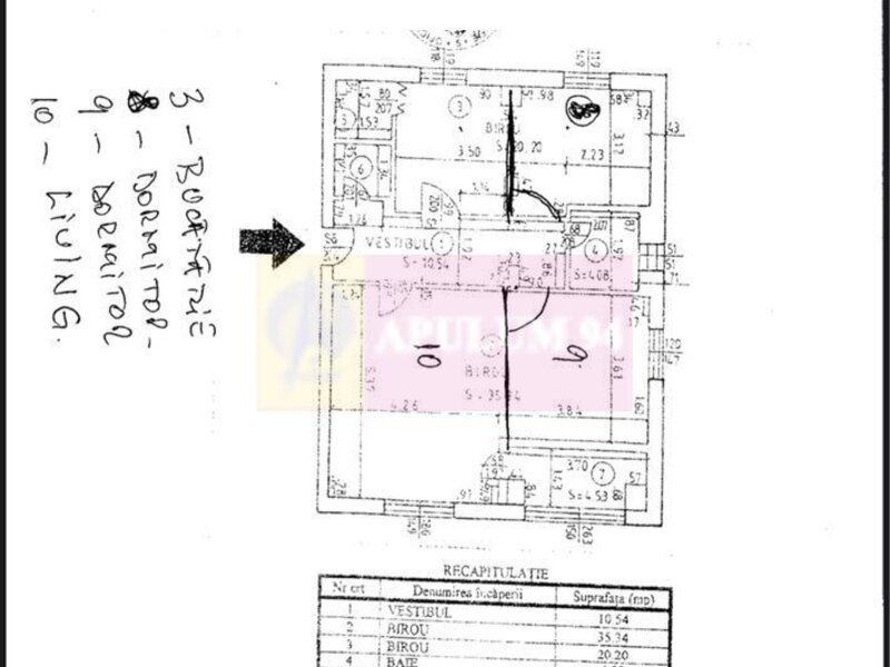
Va oferim spre vanzare un apartament 3 camere in zona Casa Poporului-Natiunile Unite, la etajul 6/8 decomandat, spațios, situat într-o zonă excelentă – chiar lângă Parcul Izvor, la câteva minute de stația de metrou Izvor magistralele M1, M2, M3, M4 și de centrul orașului. Suprafata apartamentului este de 79mp, cu doua grupuri sanitare, modificat si potrivit pentru office.
Apartamentul nu este renovat și necesită îmbunătățiri, fiind perfect pentru cei care vor să-l amenajeze după propriul gust.
Blocul este îngrijit, scara curată, vecini liniștiți și zonă foarte sigură.
Pentru detalii suplimentare si vizionari contactati agentul Dona Camelia 0733683461
Apartamentul nu este renovat și necesită îmbunătățiri, fiind perfect pentru cei care vor să-l amenajeze după propriul gust.
Blocul este îngrijit, scara curată, vecini liniștiți și zonă foarte sigură.
Pentru detalii suplimentare si vizionari contactati agentul Dona Camelia 0733683461
Cod oferta: 2785698

2.800 vizualizari
Bucuresti, 27 Noiembrie '25
Actualizat 20 Noiembrie '25
Actualizat 20 Noiembrie '25
Statii metrou
| Piața Unirii 1 | 13 min | |
| Izvor | 15 min | |
| Metrou Piața Unirii | 17 min |
Statii STB
| 136 | Calea 13 Septembrie | 6 min |
| 72 , 73 , 76 , 77 381 | Bulevardul Alexandru Obregia | 7 min |
| 116 , 141 | Secuilor | 7 min |
| Bd. Alexandru Obregia | 8 min | |
| 232 , N106 , N112 | Huși | 8 min |
| 117 , 232 | 11 Iunie | 8 min |
| 117 | Piața Regina Maria | 8 min |
| 1 , 10 72 , 73 , 74 , 76 216 , 232 , 312 , 313 , 381 , 610 , N105 | Piața Sudului | 9 min |
| 72 , 73 | Emil Racoviță | 9 min |
| Nițu Vasile | 9 min | |
| Palatul Parlamentului | 10 min | |
| Bd. Națiunile Unite | 10 min | |
| 232 | Patriarhia Română | 11 min |
| 136 | Casa Academiei | 11 min |
Evolutia preturilor imobiliare in Unirii
se incarca..
<img src="https://apulum-94.crmrebs.com/track/15/2785698.gif" />
