Unirii, Calea Calarasi, apartament 3 camere, imobil 2025
274.999 €
Unirii, Calea Calarasi, apartament 3 camere, imobil 2025.
274.999 €
Caracteristici
Suprafata 76 mp
An 2025
Decomandat
Etaj 2 din 5
Optiuni interior: 2 grupuri sanitare Apometre Balcon Centrala termica Contor gaze Inst. electrice noi Inst. sanitare noi Izolatie termica Termopan Usa metalica
Optiuni exterior: Interfon Lift Structura beton M 18 min.
Optiuni interior: 2 grupuri sanitare Apometre Balcon Centrala termica Contor gaze Inst. electrice noi Inst. sanitare noi Izolatie termica Termopan Usa metalica
Optiuni exterior: Interfon Lift Structura beton M 18 min.
Descriere
Va propun spre vanzare un apartament modern cu 3 camere, situat in zona Unirii – Calea Calarasi, una dintre cele mai bine cotate si accesibile zone centrale ale Capitalei.
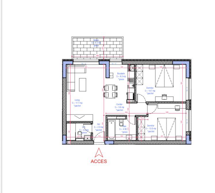
Proprietatea are o suprafata utila de 76 mp si este pozitionata la etajul 2 al unui imobil cu 5 niveluri, finalizat in anul 2025. Compartimentarea este eficienta si echilibrata, apartamentul beneficiind de 2 grupuri sanitare, oferind confort sporit pentru o familie sau pentru rezidenta premium in regim urban.
Constructia noua asigura standarde moderne de calitate, eficienta energetica si finisaje contemporane, reprezentand o alegere excelenta atat pentru locuinta proprie, cat si pentru investitie in zona centrala.
Amplasarea ofera acces rapid catre Piata Unirii, mijloace de transport in comun, restaurante, institutii de invatamant si centre comerciale.
Pret: 274.999 euro + TVA.
Pentru mai multe informatii si programarea unei vizionari, va rugam sa sunati la tel.
Proprietatea are o suprafata utila de 76 mp si este pozitionata la etajul 2 al unui imobil cu 5 niveluri, finalizat in anul 2025. Compartimentarea este eficienta si echilibrata, apartamentul beneficiind de 2 grupuri sanitare, oferind confort sporit pentru o familie sau pentru rezidenta premium in regim urban.
Constructia noua asigura standarde moderne de calitate, eficienta energetica si finisaje contemporane, reprezentand o alegere excelenta atat pentru locuinta proprie, cat si pentru investitie in zona centrala.
Amplasarea ofera acces rapid catre Piata Unirii, mijloace de transport in comun, restaurante, institutii de invatamant si centre comerciale.
Pret: 274.999 euro + TVA.
Pentru mai multe informatii si programarea unei vizionari, va rugam sa sunati la tel.
52 vizualizari
Bucuresti, Sector 3, Publicat azi; 13:34
Actualizat azi; 13:34
Actualizat azi; 13:34
Statii metrou
| Piața Unirii 2 | 18 min | |
| Spitalul Colțea | 20 min | |
| Strada Ion Câmpineanu | 25 min |
Statii STB
| Piața Sfântul Ștefan | 2 min | |
| Alexandru Sihleanu | 4 min | |
| 97 | Hala Traian | 6 min |
| Mântuleasa | 7 min | |
| 14 , 55 97 | Mecet | 8 min |
| 69 , 70 , 85 , 90 311 , N102 , N108 | Calea Moșilor | 9 min |
| 97 | Matei Basarab | 9 min |
| Bulevardul Carol I | 10 min |
Evolutia preturilor imobiliare in Mosilor-Dacia
se incarca..
