Drumul Taberei, Brancusi
84.000 €
Drumul Taberei, Brancusi,
84.000 €
Caracteristici
Suprafata 51 mp
An 2008
Semidecomandat
Etaj parter din 3
Optiuni interior: Apometre Balcon Centrala termica Contor gaze Debara Inst. electrice noi Inst. sanitare noi Renovat recent Termopan Usa metalica
Optiuni exterior: Loc parcare Structura beton M 17 min.
Optiuni interior: Apometre Balcon Centrala termica Contor gaze Debara Inst. electrice noi Inst. sanitare noi Renovat recent Termopan Usa metalica
Optiuni exterior: Loc parcare Structura beton M 17 min.
Descriere
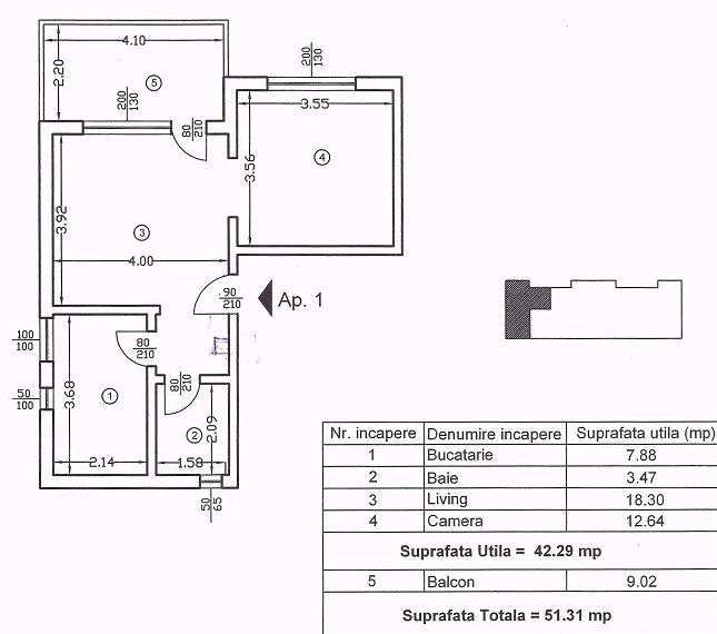
2 camere • Parter • str. Drm. Valea Cricovului.
Apartament bine compartimentat, bloc solid P+2E+M din 2008.
Strada linistita, trafic moderat, loc de parcare, terasa inchisa de 9 mp, cu calorifer (practic o a treia camera), living 18,3 mp, camera 12,6mp, baie cu geam, bucatarie inchisa, centrala noua, renovat, utilat, mobilat.
Important: fotografiile cu cele doua camere si terasa nu contin mobilierul, desi acesta exista fizic. Daca viitorul proprietar nu-l doreste, mobilierul va fi transferat.
Profi, Lidl, Kaufland, Mega Image, clinici medicale, parc Brancusi si statii STB aproape.
Pret: 84.000 euro, usor negociabil.
Apartament bine compartimentat, bloc solid P+2E+M din 2008.
Strada linistita, trafic moderat, loc de parcare, terasa inchisa de 9 mp, cu calorifer (practic o a treia camera), living 18,3 mp, camera 12,6mp, baie cu geam, bucatarie inchisa, centrala noua, renovat, utilat, mobilat.
Important: fotografiile cu cele doua camere si terasa nu contin mobilierul, desi acesta exista fizic. Daca viitorul proprietar nu-l doreste, mobilierul va fi transferat.
Profi, Lidl, Kaufland, Mega Image, clinici medicale, parc Brancusi si statii STB aproape.
Pret: 84.000 euro, usor negociabil.
2.677 vizualizari
Bucuresti, Sector 6, azi; 09:24
Actualizat 08 Ianuarie '26
Actualizat 08 Ianuarie '26
Statii metrou
| Valea Ialomiței | 17 min | |
| Constantin Brâncuși | 23 min | |
| Râul Doamnei | 25 min |
Statii STB
| Cartier Constantin Brâncuși - urcare | 13 min | |
| Cartier Constantin Brâncuși - coborâre | 14 min | |
| 168 | Parcul C-tin Brâncuși | 17 min |
Evolutia preturilor imobiliare in Drumul Taberei-Ghencea
se incarca..
