Dristor, 5 minute metrou si parc IOR, stradal pe Ramnicu Valcea, stradal
112.000 €
Dristor, 5 minute metrou si parc IOR, stradal pe Ramnicu Valcea, stradal
112.000 €
Caracteristici
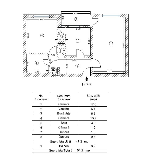
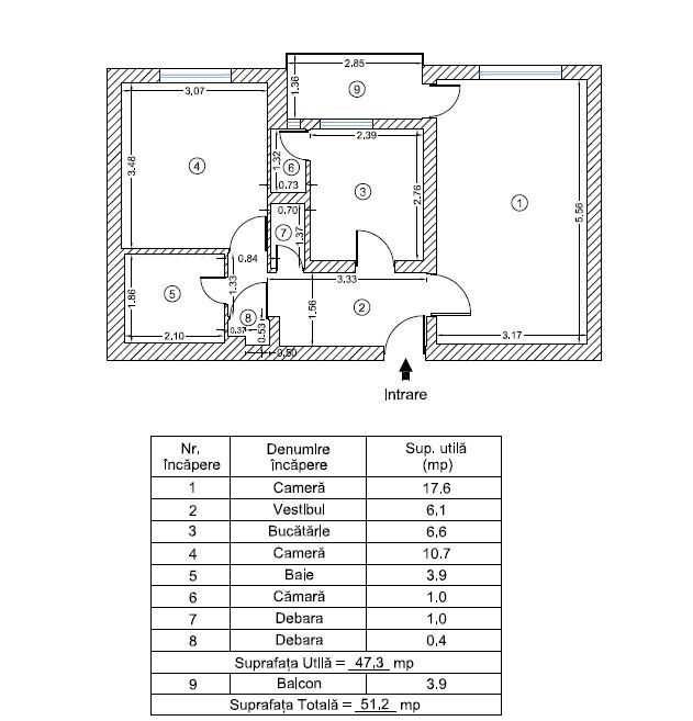
Suprafata 52 mp
An 1983
Decomandat
Etaj 3 din 10
Optiuni interior: Balcon Termopan
Optiuni exterior: Reabilitat termic M 6 min.
Optiuni interior: Balcon Termopan
Optiuni exterior: Reabilitat termic M 6 min.
Descriere
Va prezentam un apartament de 2 camere situat in Dristor, la numai 5 minute metrou si parc IOR, stradal pe Ramnicul Valcea intr-un bloc reabilitat. Apartamentul este decomandat, are 52 mp, termopane noi, necesita imbunatatiri, este liber si are toate actele la zi. Va asteptam la vizionare
1.911 vizualizari
Bucuresti, Sector 3, ieri; 20:00
Actualizat 27 Noiembrie '25
Actualizat 27 Noiembrie '25
Statii metrou
| Dristor | 6 min | |
| Mihai Bravu | 20 min | |
| Piața Muncii M1 | 24 min |
Statii STB
| 330 | Dristorului | 4 min |
| Dristor 1 | 5 min | |
| Dristor 2 | 6 min | |
| Șoseaua Mihai Bravu | 6 min | |
| 1 135 , 330 , 634 | Calea Dudești | 6 min |
| Piața Râmnicu Sărat | 8 min | |
| 1 , 10 | Laborator | 8 min |
Evolutia preturilor imobiliare in Titan-Dristor
se incarca..
