Spatiu de birouri 210 mp in Otopeni – Utilitati incluse, autorizat ISU, parcare
2.300 €
Spatiu de birouri 210 mp in Otopeni – Utilitati incluse, autorizat ISU, parcare
2.300 €
Caracteristici
Suprafata utila 210 mp
Birouri
Descriere
B-North Real Estate va propune spre inchiriere un spatiu de birouri modern, complet utilat si autorizat ISU, amplasat pe Soseaua Odai, Otopeni, intr-o zona cu acces excelent si vizibilitate ridicata.
Acest spatiu este ideal pentru companii care isi doresc un mediu profesional sigur, eficient si fara griji privind costurile lunare.
Caracteristici principale
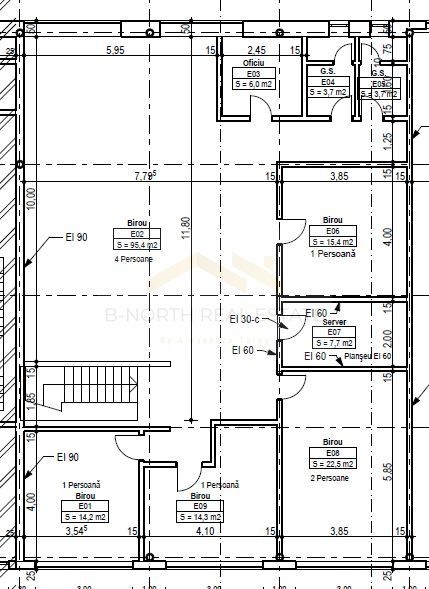
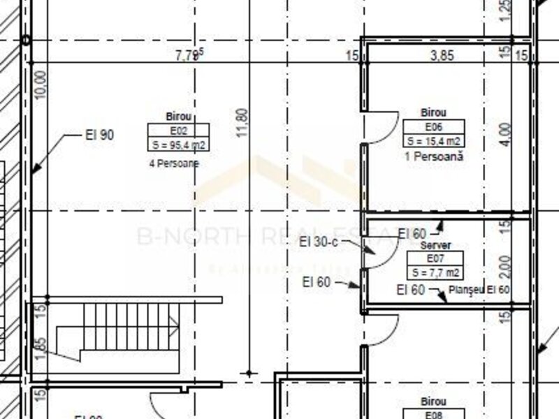
Suprafata totala: aprox. 210 mp, incluzand receptie la parter si etajul dedicat birourilor
Compartimentare optima: birouri individuale + un spatiu amplu 95.4 mp, ce poate functiona ca sala de conferinte, training, meeting room sau sala pentru cursuri si activitati pentru copii
Dotari premium & siguranta
Autorizat ISU – standarde inalte de securitate
Generator electric – continuitate totala a activitatii, indiferent de situatie
Camera pentru server – infrastructura pregatita pentru companii tech
Sistem de alarma, detectoare de fum, hidranti interiori si echipamente de siguranta
Statie de incarcare pentru masini electrice – un plus pentru angajati si clienti
5 locuri de parcare private – confort si acces rapid
Avantaje incluse
Toate utilitatile sunt incluse in chirie → costuri fixe, fara cheltuieli ascunse
Spatii luminoase, adaptabile oricarui tip de activitate
Infrastructura complet functionala, gata de preluare si utilizare imediata
Potrivit pentru
Companii care doresc un birou modern, sigur si fara griji privind mentenanta
Centre de training, programe educationale pentru copii, cursuri si workshopuri
Activitati creative sau servicii profesionale
IT, consultanta, HR, marketing, agentii si birouri administrative
Orice business care necesita siguranta, stabilitate si un spatiu complet utilat
Pentru mai multe detalii si vizionari, va rigam sa ne contactati!
+ 21% TVA
Acest spatiu este ideal pentru companii care isi doresc un mediu profesional sigur, eficient si fara griji privind costurile lunare.
Caracteristici principale
Suprafata totala: aprox. 210 mp, incluzand receptie la parter si etajul dedicat birourilor
Compartimentare optima: birouri individuale + un spatiu amplu 95.4 mp, ce poate functiona ca sala de conferinte, training, meeting room sau sala pentru cursuri si activitati pentru copii
Dotari premium & siguranta
Autorizat ISU – standarde inalte de securitate
Generator electric – continuitate totala a activitatii, indiferent de situatie
Camera pentru server – infrastructura pregatita pentru companii tech
Sistem de alarma, detectoare de fum, hidranti interiori si echipamente de siguranta
Statie de incarcare pentru masini electrice – un plus pentru angajati si clienti
5 locuri de parcare private – confort si acces rapid
Avantaje incluse
Toate utilitatile sunt incluse in chirie → costuri fixe, fara cheltuieli ascunse
Spatii luminoase, adaptabile oricarui tip de activitate
Infrastructura complet functionala, gata de preluare si utilizare imediata
Potrivit pentru
Companii care doresc un birou modern, sigur si fara griji privind mentenanta
Centre de training, programe educationale pentru copii, cursuri si workshopuri
Activitati creative sau servicii profesionale
IT, consultanta, HR, marketing, agentii si birouri administrative
Orice business care necesita siguranta, stabilitate si un spatiu complet utilat
Pentru mai multe detalii si vizionari, va rigam sa ne contactati!
+ 21% TVA
Cod oferta: 2829978

2.248 vizualizari
Ilfov, Otopeni, azi; 10:21
Actualizat 11 Mai '26
Actualizat 11 Mai '26
Statii STB
| 203 , 304 , 403 , 441 , 442 , 443 , 444 , 446 , 447 , 448 , 477 , 7 | Pasaj CFR Otopeni | 10 min |
| Centură | 11 min | |
| 203 , 304 , 436 , 474 | Pasaj Otopeni | 13 min |
| BUS | 14 min |
<img src="https://bnorth.crmrebs.com/track/15/2829978.gif" />
