Gheorghe Magheru 12-14, Piata Romana
1.500 €
Gheorghe Magheru 12-14, Piata Romana.
1.500 €
Caracteristici
Suprafata utila 102 mp
Sp. comercial
Detalii Suplimentare: Aer conditionat Alarma Apa curent electric Grup sanitar Internet Vad comercial Vitrina stradala M 5 min.
Detalii Suplimentare: Aer conditionat Alarma Apa curent electric Grup sanitar Internet Vad comercial Vitrina stradala M 5 min.
Descriere
Companie Imobiliara va ofera in exclusivitate spre inchiriere un spatiu comercial stradal situat pe Bd. Gheorghe Magheru 12-14, Ultracentral, in imediata apropiere de Piata Romana, Sectorul 1.
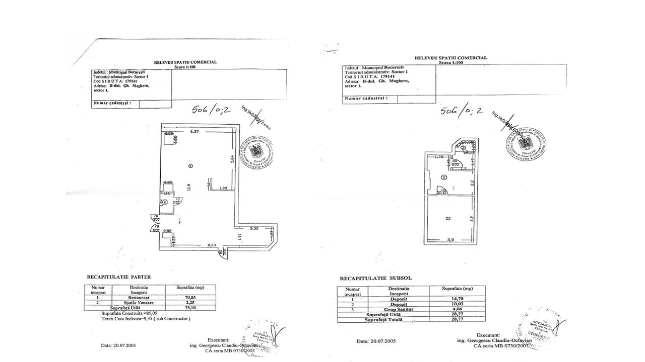
Suprafata totala: 101,87 mp.
Parter: 73,10 mp utili - Open space.
Subsol: 28,77 mp utili.
Deschidere/Vitrina: 11 ml.
Plan atasat.
Imobilul este incadrat la Clasa I Risc Seismic.
Spatiul beneficiaza de o vizibilitate foarte buna, trafic pietonal si auto intens pe tot parcursul zilei.
Pret inchiriere: 1,500 EUR+TVA/luna.
Comision: 50% din valoarea unei chirii lunare.
Suprafata totala: 101,87 mp.
Parter: 73,10 mp utili - Open space.
Subsol: 28,77 mp utili.
Deschidere/Vitrina: 11 ml.
Plan atasat.
Imobilul este incadrat la Clasa I Risc Seismic.
Spatiul beneficiaza de o vizibilitate foarte buna, trafic pietonal si auto intens pe tot parcursul zilei.
Pret inchiriere: 1,500 EUR+TVA/luna.
Comision: 50% din valoarea unei chirii lunare.
53 vizualizari
Bucuresti, Sector 1, azi; 17:22
Actualizat azi; 17:20
Actualizat azi; 17:20
Statii metrou
| Piața Romană | 5 min | |
| Strada Batiștei | 9 min | |
| Ștefan cel Mare | 22 min |
Statii STB
| Arthur Verona | 1 min | |
| 126 , 168 , 226 , 301 , 331 , 368 , 381 , 783 | Piața Romană | 5 min |
| 122 , 126 , 137 , 138 , 168 , 226 , 268 , 300 , 311 , 368 , 381 | Bd. Nicolae Bălcescu | 5 min |
| Piața Alexandru Lahovari | 6 min | |
| 311 | C.A. Rosetti | 8 min |
| 79 , 86 , 97 | Calea Dorobanților | 8 min |
| 79 , 86 , 97 | Colegiul Economic Virgil Madgearu | 9 min |
| 126 , 300 , 368 | Nicolae Golescu | 10 min |
