Cismigiu, Piata Mihail Kogalniceanu, Calea Plevnei
450 €
Cismigiu, Piata Mihail Kogalniceanu, Calea Plevnei
450 €
Caracteristici
Suprafata 50 mp
Semidecomandat
Mobilat
Utilat
Optiuni interior: Internet Aragaz Frigider Liber Televizor Aer conditionat Balcon Masina de spalat Termopan Cablu Usa metalica
Optiuni exterior: Lift M 4 min.
Optiuni interior: Internet Aragaz Frigider Liber Televizor Aer conditionat Balcon Masina de spalat Termopan Cablu Usa metalica
Optiuni exterior: Lift M 4 min.
Descriere
Izvor, Regina Elisabeta, Facultatea Stomatologie etaj 2, semidec. 50 mp, complet mobilat, bucatarie mobilata utilata bloc 1959, P+6, centrala bloc minim 1 an, fara animale de companie, agentie, 1+1
Exclusivitate - comision 50% chirias
Good Estate va propune spre inchiriere un apartament de 2 camere complet mobilat pentru locuit
Localizare: Piata Mihail Kogalniceanu Sector 5 - Bucuresti
Conditii inchirere:
CHIRIE 450 euro/luna PRET FIX
Pe termen lung, minim 1 an
1 luna avans + 1 luna garantie
Fara animale de companie
Pentru locuit
Nu se accepta Airbnb
Detalii proprietate:
Complet mobilat
An constructie: 1959
Regim de inaltime: S+P+6E
Compartimentare: semidecomandat
Orientare nord
Inaltime camere: 2,65m
Suprafata totala: 50mp
Bucatarie mobilata si utilata, masina de spalat rufe noua, aragaz nou
1 baie cu aerisire pe coloana
Bloc cu lift
Stare interior: buna
Incalzire: centrala imobil
Disponibilitate: imediata
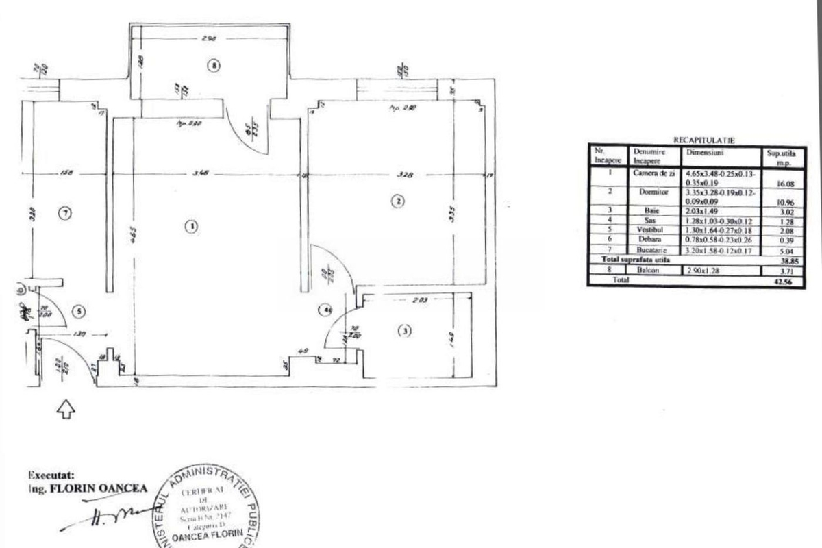
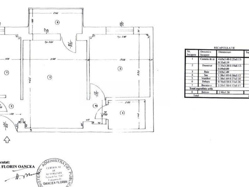
Suprafete conform releveu:
Living = 16,08mp
Dormitor = 10,96mp
Baie = 3,02mp
SAS = 1,28mp
Vestibul = 2,08mp
Debara = 0,39mp
Bucatarie = 5,04mp
Balcon = 3,71mp
Suprafata utila = 39mp
Suprafata totala = 42,6mp
Vecinatati: mijloace de transport in comun (RATB 61, 69, 70, 85, 90, 201, 336, N116), metrou Izvor (5 minute mers pe jos), Facultatea de Medicina Dentara, Oficiul Postal nr.15, Gradinita nr.73, Liceul Teoretic Bilingv Miguel de Cervantes, etc.
Exclusivitate - comision 50% chirias
Good Estate va propune spre inchiriere un apartament de 2 camere complet mobilat pentru locuit
Localizare: Piata Mihail Kogalniceanu Sector 5 - Bucuresti
Conditii inchirere:
CHIRIE 450 euro/luna PRET FIX
Pe termen lung, minim 1 an
1 luna avans + 1 luna garantie
Fara animale de companie
Pentru locuit
Nu se accepta Airbnb
Detalii proprietate:
Complet mobilat
An constructie: 1959
Regim de inaltime: S+P+6E
Compartimentare: semidecomandat
Orientare nord
Inaltime camere: 2,65m
Suprafata totala: 50mp
Bucatarie mobilata si utilata, masina de spalat rufe noua, aragaz nou
1 baie cu aerisire pe coloana
Bloc cu lift
Stare interior: buna
Incalzire: centrala imobil
Disponibilitate: imediata
Suprafete conform releveu:
Living = 16,08mp
Dormitor = 10,96mp
Baie = 3,02mp
SAS = 1,28mp
Vestibul = 2,08mp
Debara = 0,39mp
Bucatarie = 5,04mp
Balcon = 3,71mp
Suprafata utila = 39mp
Suprafata totala = 42,6mp
Vecinatati: mijloace de transport in comun (RATB 61, 69, 70, 85, 90, 201, 336, N116), metrou Izvor (5 minute mers pe jos), Facultatea de Medicina Dentara, Oficiul Postal nr.15, Gradinita nr.73, Liceul Teoretic Bilingv Miguel de Cervantes, etc.
48 vizualizari
Bucuresti, Sector 5, azi; 10:34
Actualizat azi; 10:34
Actualizat azi; 10:34
Statii metrou
Izvor | 4 min | |
Eroilor | 14 min | |
Eroilor | 16 min |
Statii STB
61 , 66 , 69 , 70 , 85 , 90 , 91 , 92 122 , 137 , 138 , 163 , 268 , 3 | Piața Mihail Kogălniceanu | 1 min |
104 , 123 , 124 | Teatrul Bulandra | 3 min |
Izvor | 3 min | |
104 , 123 , 124 , 136 , 385 | Pod Izvor | 4 min |
104 , 123 , 124 , 385 | Elie Radu | 5 min |
61 , 66 , 69 , 70 , 85 , 90 , 91 , 92 122 , 137 , 138 , 163 , 268 , 3 | Grădina Cișmigiu | 6 min |
104 , 123 , 124 , 136 | Pod Hașdeu | 6 min |
Cișmigiu | 6 min | |
66 , 70 , 92 | Vasile Pârvan | 6 min |
136 , 385 | Palatul Parlamentului | 10 min |
Evolutia preturilor imobiliare in Universitate-Kogalniceanu
se incarca..